Die Stadt Eutin im östlichen Schleswig-Holstein zählt rund 17.000 Einwohner und liegt zwischen Kiel und Lübeck, unweit der Ostsee. Das Stadtgebiet umfasst 41,1 km². Eutin ist eine gewachsene Kreisstadt im Kreis Ostholstein mit historischem Stadtkern, solider Infrastruktur und vielfältigen Einkaufsmöglichkeiten. Im Stadtkern bieten Galerien, Ateliers, Manufakturen und inhabergeführte Läden ein besonderes Einkaufserlebnis. Der Marktplatz lädt mit Cafés, Restaurants und einer Weinboutique zum Verweilen ein. Zweimal wöchentlich findet hier der beliebte Wochenmarkt statt.
Öffentliche Institutionen wie das Rathaus, die Kreisverwaltung, die Polizeistation und das Postamt sorgen für eine funktionierende Verwaltung und hohe Lebensqualität.
Eutin bietet ein breites Bildungsangebot, darunter Grund- und weiterführende Schulen sowie mehrere Kindergärten und Horteinrichtungen.
Die medizinische Versorgung ist gut aufgestellt: Haus- und Facharztpraxen, das Sankt-Elisabeth-Krankenhaus und das Ameos Klinikum gewährleisten eine umfassende Versorgung. Mehrere Apotheken ergänzen das Angebot.
Ein gut ausgebautes Straßennetz und die B76 verbinden Eutin mit Kiel, die Autobahn A1 führt nach Lübeck und Fehmarn. Das zuverlässige Busnetz und Regionalzüge ermöglichen eine einfache Mobilität. Das aktive Vereinsleben und das Kulturangebot, insbesondere die Eutiner Festspiele, prägen das Stadtbild. Jährlich lockt das Opernfestival über 50.000 Besucher.
Die reizvolle Seenlandschaft der Holsteinischen Schweiz bietet Erholung, besonders der Kleine Eutiner See mit einer Badestelle und einem Rundweg von 3,5 km, ideal für Spaziergänge. Die Nachbarschaft ist von gepflegten Ein- und Mehrfamilienhäusern geprägt, was eine problemlose Anschlussvermietung bei Mieterwechsel ermöglicht.
Infrastruktur
Flughafen
10,73 km
Fernbahnhof
0,77 km
Bus
0,26 km
Kindergarten
0,63 km
Grundschule
2 km
Realschule
6,61 km
Gymnasium
0,98 km
Zentrum
0,35 km
Einkaufsmöglichkeiten
0,83 km
Gaststätten
0,49 km
Objektbeschreibung
Attraktive Kapitalanlage mit stabilem Mietertrag – als RENTENBAUSTEIN, Investment für die nächste Generation oder für den SCHNELLEN ABVERKAUF mit Gewinnchance: Diese Immobilie bietet beide Optionen!
Eine durchdachte Nutzungskonzeption mit einer Mischung aus attraktiver Bürofläche und komfortablen Wohnungen sorgt für hohe Auslastung und stabile Einnahmen. Neben dem langfristigen Renditepotenzial ermöglicht die bestehende Aufteilung nach WEG den Abverkauf einzelner oder aller Einheiten. Teilungserklärung und Aufteilungsplan liegen vor – Sie können sofort mit der Wertoptimierung starten.
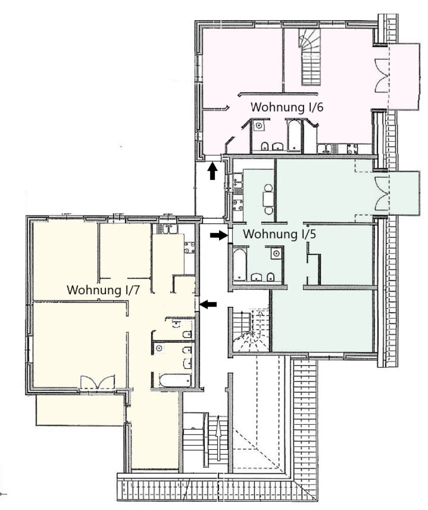
Die Immobilie umfasst laut Teilungserklärung acht Einheiten auf drei bis vier Etagen: sieben Wohneinheiten sowie eine Gewerbefläche im Erdgeschoss.
Ein Einzelverkauf wurde bisher nicht durchgeführt, was Ihnen als Investor attraktive Optionen eröffnet.
Ausstattung & Highlights:
• Helle Räume mit modernem Schnitt
• Großzügiger Balkon pro Einheit
• Hochwertige Ausstattung: Fliesen- oder Echtholzböden, Tageslichtküchen mit EBK und Geschirrspüler, Vollbäder
• Großzügige Dachbodenabteile
• Gemeinschaftlicher Trockenraum
• KFZ-Stellplätze auf dem Hof
• Zentrale Lage in Eutin
Die beliebte Wohnlage, intelligente Grundrisse und gute Ausstattung garantieren eine langfristige Vermietbarkeit mit Entwicklungspotenzial. Die Nachfrage nach hochwertigen Mietwohnungen in Eutin – dank Ostseenähe und Lebensqualität – ist stark steigend.
Die Kombination aus nachhaltiger Verwaltung, gepflegter Anlage, Mietsteigerungspotenzial und möglichem Abverkauf macht diese Immobilie zu einer idealen Kapitalanlage für Investoren, die auf stabile Erträge und flexible Verkaufsoptionen setzen.
Fordern Sie jetzt unser vollständiges Exposé mit Fotos, Grundrissen, Energieausweis, Teilungserklärung und Lageplan an. Genaue Adresse auf Anfrage.
Sonstiges
Ausstattung
Differenzierung
Gehoben
Befeuerung
Gas
Unterkellert
Nein
Das moderne Wohn- und Geschäftshaus wurde 2001 in Massivbauweise errichtet und besticht durch außergewöhnliche architektonische Elemente wie große Rundbogenfenster im Dachgeschoss. Das Gebäude kombiniert solide Kalksandsteinmauerwerk mit Stahlbetontreppen und Fliesenbelag bis in den Spitzboden. Hier befinden sich neben privaten Abstellräumen auch ein gemeinschaftlicher Wasch- und Trockenraum sowie der Heizungsraum. Das Dach ist gedämmt und mit roten Ziegeln eingedeckt. Weiße Kunststofffenster mit Isolierverglasung, die Rundbogenfenster wurden 2025 erneuert. Dank der hochwertigen Bauweise und regelmäßiger Instandhaltung präsentiert sich das Gebäude in sehr gutem Zustand. Es ist nicht unterkellert. Das Angebot umfasst 1.326 m² Eigenland, begünstigt durch ein Fahrrecht über die Zufahrt des Hinterliegergrundstücks.
Es gibt keinen Instandhaltungsrückstau, und derzeit sind keine größeren Maßnahmen geplant. Sieben der acht Einheiten sind an zuverlässige Mieter vermietet, mit monatlichen Nettomieteinnahmen von 8.528 EUR. Insgesamt wurden 926,38 m² für Wohnzwecke ausgebaut, wobei 826,61 m² gemäß der Teilungserklärung genehmigt sind. Eine Nutzungsänderung für die 99,77 m² große Fläche, ursprünglich als Bodenraum genehmigt, wurde bereits beantragt. Nach Genehmigung können hier zusätzliche Mieteinnahmen bei einem Mietzins von ca. 10,25 EUR/m² erzielt werden.
Investoren-Highlights:
– Sichere Mieteinnahmen: Alle Einheiten zuverlässig vermietet
– Gute Mietrendite: Attraktiver Mietdurchschnitt mit Entwicklungspotenzial
– Pflegeleicht: Langlebige Materialien und pflegeleichte Außenanlage
– Solide Ausstattung: Echtholzböden, geflieste Bäder und Tageslichtküchen mit Abstellräumen
– Hausverwaltung: Professionelle Betreuung der Immobilie inklusive Instandhaltung und Mieterverwaltung
Interessiert? Fordern Sie unser Exposé inklusive Innenaufnahmen an.