Eingabehilfen öffnen
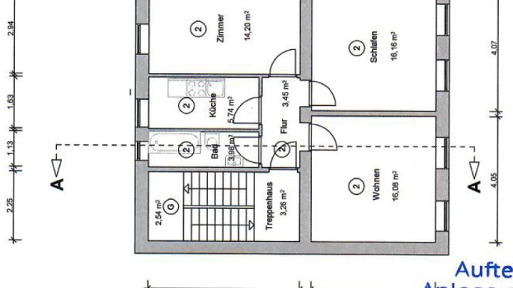
Entdecken Sie diese geräumige 3-Zimmer Eigentumswohnung im lebendigen Neumünster, die durch ein gut durchdachtes Layout besticht. Die Wohnung befindet sich im 2. Obergeschoss und ist aktuell zu einer NKM i.H.v. 565,00€ vermietet.
Der zentrale Flur ermöglicht einen unkomplizierten Zugang zu allen drei Zimmern, während die bereits vorhandene Einbauküche einen praktischen und funktionalen Mittelpunkt bildet. Das Duschbad-WC ergänzt die Wohnung, indem es eine zusätzliche Annehmlichkeit für den täglichen Komfort bietet. Das Wohngeld beträgt derzeit 147,95€ (inkl. 12,98€ Zuführung in die Erhaltungsrücklage). Die gemeinschaftliche Erhaltungsrücklage betrug per 31.12.2023 0,00€.
Die Immobilie wurde 2023 nach WEG aufgeteilt. Die Mieter haben somit einen besonderen Kündigungsschutz gem. §577a BGB.
Die Stadt Neumünster mit ca. 80.000 Einwohnern hat eine gute Verkehrsanbindung an die A 7, A 215 sowie die Bahnstrecken nach Hamburg, Lübeck und Kiel.
Die Innenstadt und der Hauptbahnhof sind schnell und bequem zu Fuß zu erreichen. Binnen kürzester Zeit erreichen Sie den öffentlichen Nahverkehr. Somit befinden sich alle Einrichtungen des täglichen Bedarfs in fußläufiger Entfernung.
Auch bietet die Gegend Sportvereine und Fitnessstudios. Eine Kindertagesstätte, Spielplätze sowie eine Schule ist ebenfalls Fußläufig zu erreichen.
Die Immobilie wurde 2023 nach WEG aufgeteilt. Die MIeter haben somit einen besonderen Kündigungsschutz gem. §577a BGB.